Casa Vendita Rovinj 252 m2

  • €780,000
  • €3095.24/m2
651-1
Rovigno, Rovigno

Di base

  • 3
  • Camere da letto
  • 3
  • Bagni
  • 252

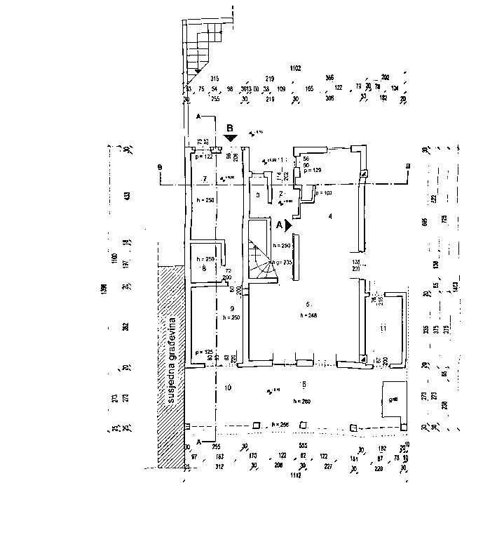
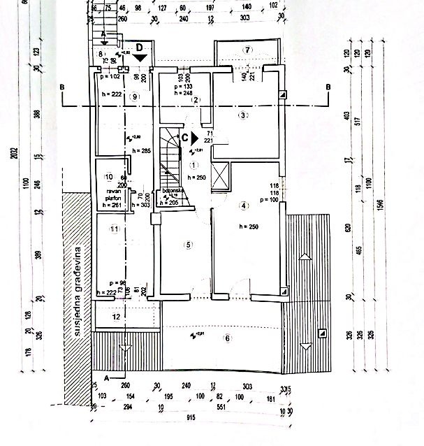
Tlocrti

Piano terra: 1

Descrizione

Rovigno, Istria – Casa eccezionale con splendido giardino
In vendita una casa eccezionalmente mantenuta a Rovigno, una delle località più ricercate dell’Adriatico.
La proprietà dispone di 252 m² di superficie abitabile e di un giardino curato di 320 m², una vera rarità sul mercato immobiliare di Rovigno, dove l’offerta di case è molto limitata.
La casa è composta da tre appartamenti, perfetti sia per una vita familiare sia per l’affitto turistico.
L’appartamento duplex al piano terra offre un ampio soggiorno, una camera da letto confortevole, un bagno e una grande terrazza privata. Gli altri due appartamenti – uno al piano terra e uno al primo piano – includono soggiorno, camera da letto, bagno e balcone.
Nel sottotetto è previsto uno spazio aggiuntivo che può essere trasformato in una camera con bagno; tutte le predisposizioni sono già installate.
Tutti gli ambienti sono curati e mantenuti con attenzione, pronti per essere utilizzati senza ulteriori investimenti.
Il bellissimo giardino con camino esterno crea un’atmosfera speciale, ideale per momenti di relax e serate estive.
La posizione è estremamente tranquilla, immersa nel verde, mentre la spiaggia e tutti i servizi principali si trovano a pochi passi, aumentando ulteriormente il valore della proprietà.
Questa casa a Rovigno rappresenta un’opportunità perfetta per chi cerca una residenza vicino al mare o un investimento con grande potenziale di affitto turistico.
Non perdete l’occasione di diventare proprietari di questa rara e preziosa proprietà a Rovigno.

Dettagli

Updated on Dicembre 31, 2025 at 7:22 am
  • Identificativo della proprietà: 651-1
  • Prezzo: €780,000
  • Metratura dell'immobile: 252 m²
  • Camere da letto: 3
  • Sobe: 3
  • Bagni: 3
  • Godina izgradnja: 1990
  • Tipo di proprietà: Casa, Indipendente, Casa
  • Stato immobiliare: Vendita

Informazioni sui contatti

Visualizza proprietà
Adriatico Real Estate
  • Adriatico Real Estate

Chiedi informazioni su questa proprietà

Annunci simili

Compare listings

Compare
Adriatico Real Estate
  • Adriatico Real Estate