Funtana, kvalitetna moderna hiša 100 m od morja

  • €760,000
  • €5588.24/m2
74-1
Funtana

Osnovno

  • 2
  • Spalnice
  • 2
  • Kopalnice
  • 136

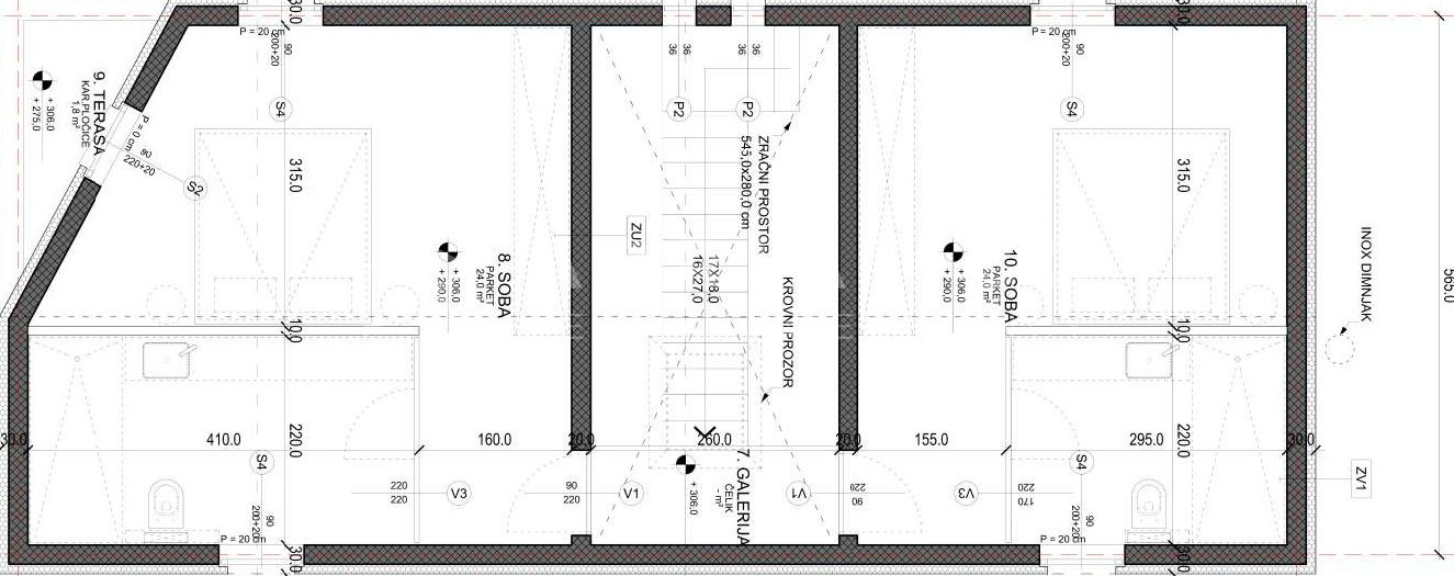
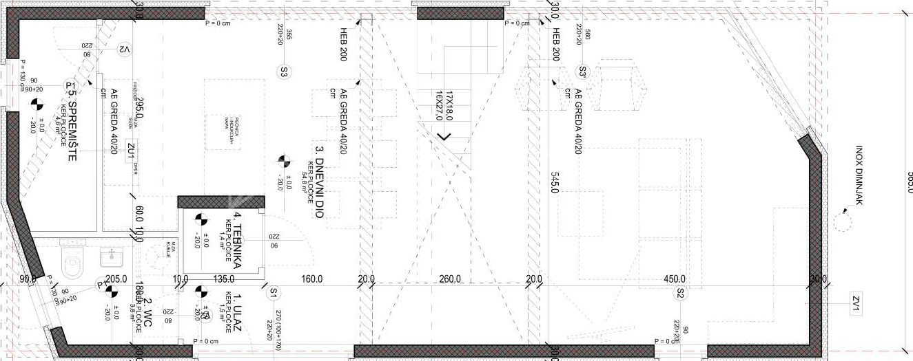
Tlocrti

Tloris: 1

Opis

Funtana, prodamo kvalitetno hišo 100 m od morja.

Ta nepremičnina se nahaja v samem centru Funtane, le 100 m od plaže in le nekaj minut od znane turistične destinacije, mesta Poreč.
Nepremičnina je sestavljena iz 2 nadstropij: pritličja in prvega nadstropja.

V pritličju boste našli kuhinjo, jedilnico, stranišče in veliko dnevno sobo, ki skozi velike steklene stene vodi na vrt.
Zgoraj sta 2 glavni spalnici, vsaka s svojo kopalnico.

Novi lastniki imajo možnost sodelovati pri gradnji te čudovite nepremičnine in jo čim bolj prilagoditi svojim željam.
Z doplačilom je možno hišo v celoti opremiti.

Druge značilnosti:
– Talne obloge:

delno pokrita terasa in pločnik: bele betonske plošče tipa Montblanc
delno pokrito parkirišče: belo-siv Montblanc granulat, mat polirane plošče
dnevna soba, kuhinja in hodnik: Impasto Veneziano plošče
WC, shramba in kurilnica: talna in stenska keramika
kopalnica: talna in stenska keramika, predlagan izvajalec: Cotte Este
spalnice: dvoslojni parket večjih dimenzij

– Ogrevanje – talno ogrevanje preko toplotne črpalke v vseh prostorih razen WC-ja in vhoda
– Hlajenje in ogrevanje – Inverterska klimatska naprava: 5 enot
– Vgrajen čistilec vode

Podrobnosti

Updated on March 30, 2026 at 9:11 pm
  • ID nepremičnine: 74-1
  • Cena: €760,000
  • Kvadratura nepremičnine: 136 m²
  • Spalnice: 2
  • Sobe: 2
  • Kopalnice: 2
  • Vrsta nepremičnine: hiše, Hiša, Samostojna
  • Stanje nepremičnine: Prodaja

Podatki za kontakt

Ogled nepremičnine
Adriatico Real Estate
  • Adriatico Real Estate

Vprašajte o tej nepremičnini

Podobni oglasi

Compare listings

Compare
Adriatico Real Estate
  • Adriatico Real Estate