Rovinj, a beautiful apartment house in the old town

  • €800,000
  • €770,000
  • €5422.54/m2
363-1
Rovinj

Basic

  • 4
  • Bedrooms
  • 4
  • Bathroom
  • 142

Tlocrti

Ground plan: 1

Description

Rovinj, an elegant apartment house in the old town center is for sale.

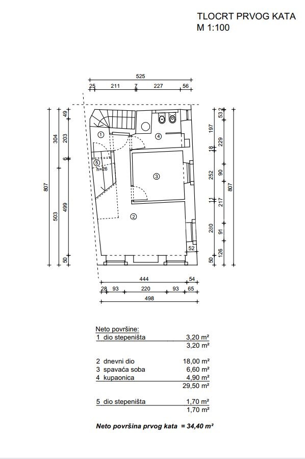
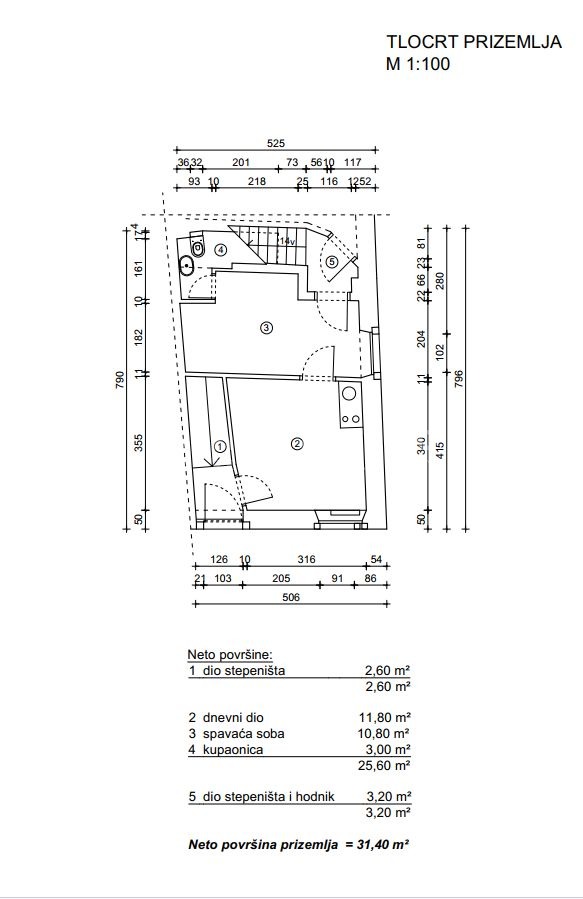
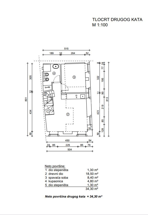
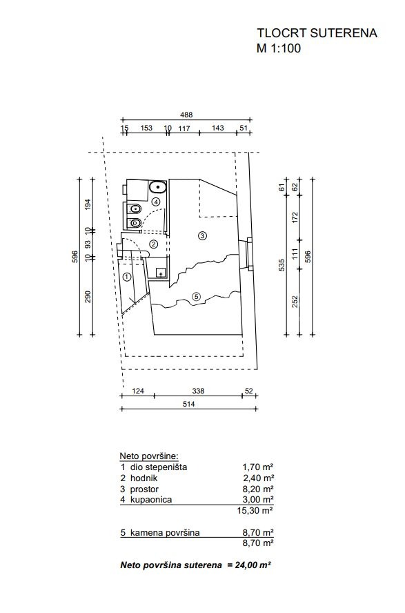
This beautiful apartment house located in the old town center is spread over 4 floors with a total area of ​​142m2.
The house was completely and thoroughly renovated in 2018, and consists of a basement that currently serves as a storage room with a bathroom, while on the ground and first floor there are separate apartments with a kitchen, dining room, living room, one bedroom and a bathroom. On the second floor there is a two-story apartment with a kitchen, dining room, one bedroom and a bathroom, and on the gallery there is a small living room and bedroom.
Heating and cooling takes place through air conditioning.
Characteristics of the house:

new roof and facade;
new electrical and water installations;
wooden carpentry:
marble and wooden floors;
stone staircase.

The house is successfully rented for tourist purposes and is sold fully furnished.

Details

Updated on March 25, 2026 at 4:35 pm
  • Property ID: 363-1
  • Price: €770,000
  • Square footage of the property: 142 m²
  • Bedrooms: 4
  • Sobe: 8
  • Bathroom: 4
  • Property type: Detached house, House
  • Real estate status: Sale

Contact information

View properties
Adriatico Real Estate
  • Adriatico Real Estate

Ask about this property

Similar ads

Compare listings

Compare
Adriatico Real Estate
  • Adriatico Real Estate