Novigrad, Istra – samostojeća kuća 50m od mora

  • €586,500
  • €4443.18/m2
672-1
Novigrad

Osnovno

  • 5
  • Spavaćih soba
  • 2
  • Kupaonice
  • 132

Tlocrti

Tlocrt: 1

Opis

Novigrad – samostojeća kuća u blizini uređene plaže
Privlačna prilika za nekretninu! Ova kuća udaljena je svega 50 metara od obale mora, smještena u blizini plaže u prekrasnoj okolici Novigrada. S ukupnom površinom od 132m2, ova nekretnina nudi udobnost i praktičnost, idealnu kako za vlastiti dom tako i za turističke svrhe.
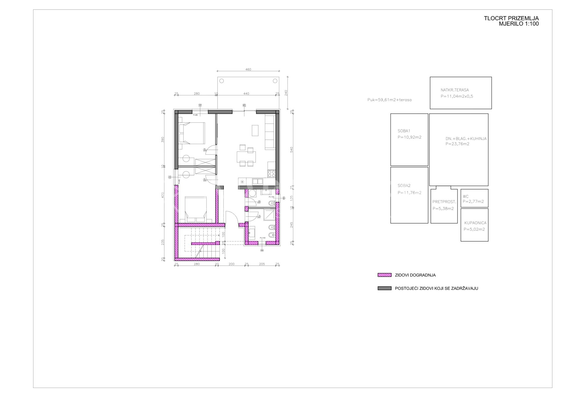
Kuća je podijeljena u dva stana, pružajući fleksibilnost i mogućnost različitih namjena. Stan u prizemlju sastoji se od prostranog dnevnog boravka spojenog s kuhinjom, dvije udobne spavaće sobe te moderno uređenog kupatila. Posebna draž ovog stana je vrt koji nudi intimnost i prostor za opuštanje na otvorenom.
Na prvom katu nalazi se drugi stan koji se sastoji od ulaznog hodnika, dvije prostrane spavaće sobe, dobro opremljene kuhinje te dnevnog boravka s izlazom na natkrivenu terasu. S terase se pruža predivan pogled na more..
Za sva dodatna pitanja stojimo Vam na raspolaganju!

Detalji

Updated on 25 travnja, 2026 at 5:56 am
  • ID nekretnine: 672-1
  • Cijena: €586,500
  • Kvadratura nekretnine: 132 m²
  • Spavaćih soba: 5
  • Sobe: 4
  • Kupaonice: 2
  • Vrsta nekretnine: Kuća, Samostojeća kuća
  • Stanje nekretnine: Prodaja

Podaci za kontakt

Pogledajte nekretninu
Adriatico Real Estate
  • Adriatico Real Estate

Raspitajte se o ovoj nekretnini

Slični oglasi

Compare listings

Compare
Adriatico Real Estate
  • Adriatico Real Estate