Poreč, Tar – novogradnja – trosobni stan u prizemlju

  • €282,200
  • €3201/m2
207-1
Tar

Osnovno

  • 3
  • Spavaćih soba
  • 1
  • Kupaonica
  • 88.16

Tlocrti

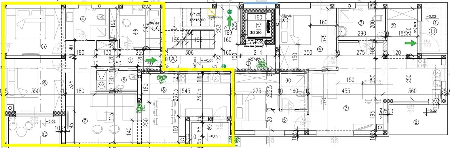
Tlocrt: 1

Opis

Poreč, Tar, prodaje se trosobni stan u prizemlju, u izgradnji.

U tijeku je izgradnja stambene zgrade suvremenog dizajna koja će se protezati na 4 kata i sadržavati 11 stanova.
Na prodaju je stan od 88,16m2 koji će biti smješten u prizemlju te će se sastojati od:

hodnika;
kuhinje s blagovaonicom;
dnevnog boravka;
3 spavaće sobe;
kupaonice;
WC-a i
2 terase.

Ovom stanu, kao i svim ostalim stanovima, pripadat će 2 parking mjesta u dvorištu zgrade.

Karakteristike zgrade:

Locirana u mirnom dijelu na 500m od centra Tara, 1400m od mora i svega 10 min vožnje do centra grada Poreča;
Cijelo pročelje na kojem se nalaze terase i dnevni dijelovi stanova orijentirano je južno stoga će svi stanovi biti obasjani prirodnom svjetlošću;
Ugrađeno dizalo (lift);
Svaki stan će biti opremljen električnim podnim grijanjem kroz cijelu stambenu površinu;
Vanjska stolarija – PVC troslojna Gealan S9000;
U svakom stanu će biti provedena 1. faza za klima uređaje;
Predviđen datum završetka gradnje je 01.07.2025. godine.

U ponudi za prodaju je veći broj stanova različitih stambenih površina sa jednom ili dvije spavaće sobe smještenih na svim katovima zgrade.
Investitor je renomirano društvo koje posluje dugi niz godina, a njihovi kvalitetni projekti uspješno su plasirani na tržište nekretnina diljem Republike Hrvatske.

Detalji

Updated on 27 travnja, 2026 at 5:52 am
  • ID nekretnine: 207-1
  • Cijena: €282,200
  • Kvadratura nekretnine: 88.16 m²
  • Spavaćih soba: 3
  • Sobe: 4
  • Kupaonica: 1
  • Godina izgradnja: 2025
  • Vrsta nekretnine: Stan, Stan u zgradi
  • Stanje nekretnine: Prodaja

Podaci za kontakt

Pogledajte nekretninu
Adriatico Real Estate
  • Adriatico Real Estate

Raspitajte se o ovoj nekretnini

Slični oglasi

Compare listings

Compare
Adriatico Real Estate
  • Adriatico Real Estate