Rovinj, Istra – moderan stan na korak od grada

  • €219,000
665-1
Rovinj

Osnovno

  • 1
  • Spavaća soba
  • 1
  • Kupaonica
  • 31.85

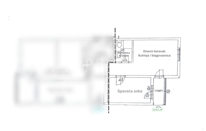
Tlocrti

Tlocrt: 1

Opis

Rovinj, Istra – prodaje se odličan stan na korak od grada

U prodaji je moderan, potpuno obnovljen stan od 32 m² na premium mikrolokaciji u Rovinju – nekoliko minuta hoda od starogradske jezgre i najljepših rovinjskih plaža. Ova nekretnina pozicionira se kao tržišno idealno rješenje za kupce koji žele visoku vrijednost po kvadratu i beskompromisnu funkcionalnost.
KLJUČNE ZNAČAJKE:

Lokacija – neposredna blizina centra, restorana, plaža i svih sadržaja Rovinja
Odličan raspored – dnevni dio/blagovaonica, moderna kuhinja, spavaća soba, kupaonica
Zaseban ulaz – maksimalna privatnost i autonomija korištenja
Klima uređaj – kontroliran komfor 365 dana u godini
Odvojene režije– kontrola potrošnje    

Zbog pozicije u jednoj od najtraženijih zona Rovinja i ugodno vizualnog standarda uređenja, stan ima izniman potencijal za dnevni i sezonski najam. Omogućio bi vam povrat investicije i kontinuiranu popunjenost kroz cijelu sezonu.
Ako tražite nekretninu u Istri koja spaja premium lokaciju, dizajn i investicijsku isplativost — ovo je rješenje koje ima sve.
 

Detalji

Updated on 25 travnja, 2026 at 5:56 am
  • ID nekretnine: 665-1
  • Cijena: €219,000
  • Kvadratura nekretnine: 31.85 m²
  • Spavaća soba: 1
  • Sobe: 2
  • Kupaonica: 1
  • Godina izgradnja: 1980
  • Vrsta nekretnine: Stan, Stan u zgradi
  • Stanje nekretnine: Prodaja

Podaci za kontakt

Pogledajte nekretninu
Adriatico Real Estate
  • Adriatico Real Estate

Raspitajte se o ovoj nekretnini

Slični oglasi

Compare listings

Compare
Adriatico Real Estate
  • Adriatico Real Estate