Rovinj, okolica, samostojeća kuća s bazenom u roh bau fazi

  • €400,000
  • €2285.71/m2
619-1
Rovinj

Osnovno

  • 4
  • Spavaćih soba
  • 4
  • Kupaonice
  • 175

Tlocrti

Tlocrt: 1

    Opis

    Rovinj, okolica, samostojeća kuća s bazenom u roh bau fazi

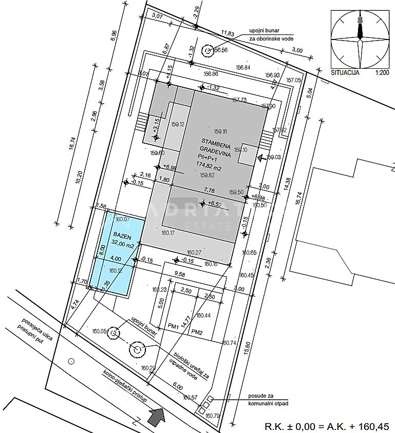
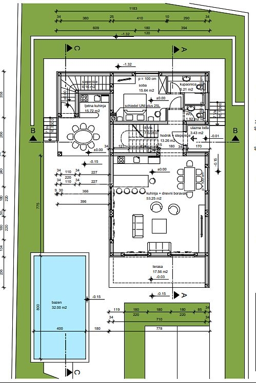
    U mirnom naselju nedaleko od Rovinja nalazi se ova samostojeća kuća u roh bau fazi, površine 175 m², s pripadajućim vrtom, bazenom i privatnim parkiralištem. Kuća je dovedena pod krov, s ravnim krovom, a sastoji se od tri etaže: podruma, prizemlja i kata.
    Podrum obuhvaća prostor predviđen za konobu s kaminom, kotlovnicu i toalet.
    Prizemlje se sastoji od ulaznog prostora, dnevnog boravka, kuhinje i blagovaonice s izlazom na terasu, ljetnu kuhinju, vrt i bazen dimenzija 8×4 m. Također je predviđena jedna spavaća soba s vlastitom kupaonicom i dodatni toalet.
    Unutarnje stepenište vodi na kat, gdje se nalaze tri spavaće sobe, svaka s vlastitom kupaonicom. Dvije sobe imaju izlaz na terasu. Na katu se nalazi i dodatna ostava.
    Kuća ima dimnjak i mogućnost priključka na sve glavne energente. Predviđena je ugradnja Fujitsu kanalne klime i podnog grijanja. Također je ugrađena temeljna kanalizacija, biološka septička jama i upojni bunar. Priključci za vodu i struju su osigurani.
    Priprema za bazen je izvedena, uključujući kotlovnicu za bazen. Na okućnici se nalaze prednji i stražnji vrt, kao i parkiralište za tri vozila.
    Postoji mogućnost dogovora s investitorom za dovršetak kuće do faze visokog roh baua.
    Nekretnina s velikim potencijalom, idealna za budući dom ili investiciju za turistički najam.

    Detalji

    Updated on 6 prosinca, 2025 at 5:15 am
    • ID nekretnine: 619-1
    • Cijena: €400,000
    • Kvadratura nekretnine: 175 m²
    • Spavaćih soba: 4
    • Sobe: 5
    • Kupaonice: 4
    • Godina izgradnja: 2024
    • Vrsta nekretnine: Kuća, Samostojeća kuća
    • Stanje nekretnine: Prodaja

    Podaci za kontakt

    Pogledajte nekretninu
    Adriatico Real Estate
    • Adriatico Real Estate

    Raspitajte se o ovoj nekretnini

    Slični oglasi

    Compare listings

    Compare
    Adriatico Real Estate
    • Adriatico Real Estate