Rovinjsko selo, Kamena kuća za adaptaciju, s dvorištem

  • €250,000
  • €3048.78/m2
698-1
Rovinj

Osnovno

  • 82

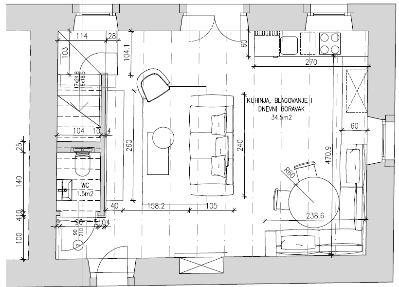
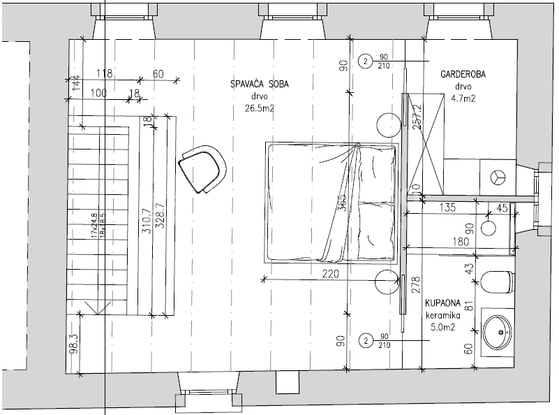
Tlocrti

Tlocrt: 1

Opis

Rovinjsko selo, Kamena kuća za adaptaciju, s dvorištem
U ponudi je autentična istarska kamena kuća smještena u samom centru Rovinjskog Sela, jednog od najtraženijih naselja u okolici Rovinja.
Nekretnina se nalazi na izvrsnoj lokaciji, svega 5 km od Rovinja i mora, što je čini idealnom za investiciju, turistički najam ili obitelški život.
Kuća se sastoji od prizemlja i prvog kata, ukupne stambene površine 82 m², uz dvorište od približno 170 m², koje nudi brojne mogućnosti uređenja – vrt, terasa, bazen ili prostor za opuštanje.
Nekretninu je potrebno adaptirati i izvesti instalacije, no već su napravljeni ključni radovi: novi krov, nova vanjska stolarija, fasada, betonska deka na prvom katu te čelične grede ispod krova. Odlična prilika za uređenje po vlastitim željama, bilo za turistički najam ili stanovanje.
Zahvaljujući lokaciji i karakteru, ova kamena kuća idealna je kao investicija za turistički najam, ali i kao ugodna obiteljska kuća u mirnom istarskom okruženju.
Blizina Rovinja, jedne od najatraktivnijih destinacija u Istri, osigurava dugoročnu vrijednost i izvrsnu iskoristivost nekretnine.

Detalji

Updated on 17 veljače, 2026 at 5:14 am
  • ID nekretnine: 698-1
  • Cijena: €250,000
  • Kvadratura nekretnine: 82 m²
  • Sobe: 2
  • Vrsta nekretnine: Dvojna kuća, Kuća
  • Stanje nekretnine: Prodaja

Podaci za kontakt

Pogledajte nekretninu
Adriatico Real Estate
  • Adriatico Real Estate

Raspitajte se o ovoj nekretnini

Slični oglasi

Compare listings

Compare
Adriatico Real Estate
  • Adriatico Real Estate