Poreč, Tar – Neubau – Einzimmerwohnung im 1. Stock

  • €148,000
  • €4000/m2
640-1
Tar-Vabriga

Basic

  • 1
  • Schlafzimmer
  • 1
  • Badezimmer
  • 37

Tlocrti

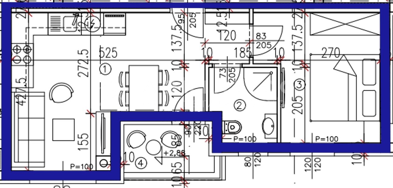
Grundriss: 1

Beschreibung

Tar, Istrien – Ein-Zimmer-Wohnung mit Terrasse in moderner Neubauanlage mit Aufzug
In einer ruhigen Gegend von Tar, nur wenige Minuten vom Meer und der Stadt Poreč entfernt, steht eine moderne Ein-Zimmer-Wohnung zum Verkauf, gelegen im ersten Stock eines hochwertigen Neubaus mit Aufzug.
Die Wohnung mit 37 m² Wohnfläche wurde sorgfältig geplant, um maximalen Komfort und Funktionalität für das tägliche Leben oder den Urlaub in Istrien zu bieten.
Sie besteht aus Wohnzimmer mit Küche und Essbereich, einem Schlafzimmer, Badezimmer und einer Terrasse, die zum Entspannen und Genießen im Freien einlädt.
Zur Wohnung gehören außerdem zwei private Parkplätze.
Das Gebäude wurde nach hohen Qualitätsstandards errichtet und verfügt über einen Aufzug, der zusätzlichen Komfort im Alltag bietet.
Die ruhige Lage, die Nähe zum Meer, zu Restaurants und allen wichtigen Einrichtungen machen diese Immobilie zu einer hervorragenden Wahl für Wohnen, Ferien oder als Investition.
Lage: Tar, Istrien – ruhige Umgebung, nahe dem Meer und Poreč
Wohnfläche: 37 m²
Ein Schlafzimmer
Terrasse
Zwei Privatparkplätze
Gebäude mit Aufzug
Fertigstellung: Mai 2027
Diese Immobilie bietet eine perfekte Kombination aus Qualität, Funktionalität und istrischem Lebensgefühl.
Ideal für Paare, Singles oder als Investitionsobjekt für Ferienvermietung.

Einzelheiten

Updated on Januar 20, 2026 at 4:50 p.m.
  • Immobilien-ID: 640-1
  • Preis: €148,000
  • Quadratmeterzahl der Immobilie: 37 m²
  • Schlafzimmer: 1
  • Soba: 1
  • Badezimmer: 1
  • Godina izgradnja: 2027
  • Art der Immobilie: Wohnung, Wohnung, Wohnung im Gebäude
  • Immobilienstatus: Verkauf

Kontaktdetails

Immobilie ansehen
Adriatico Real Estate
  • Adriatico Real Estate

Fragen Sie nach dieser Immobilie

Ähnliche Anzeigen

Compare listings

Compare
Adriatico Real Estate
  • Adriatico Real Estate