Tar, Istra – novogradnja – jednosobni stan u noovogradnji s liftom

  • €148,000
  • €4000/m2
640-1
Tar

Osnovno

  • 1
  • Spavaća soba
  • 1
  • Kupaonica
  • 37

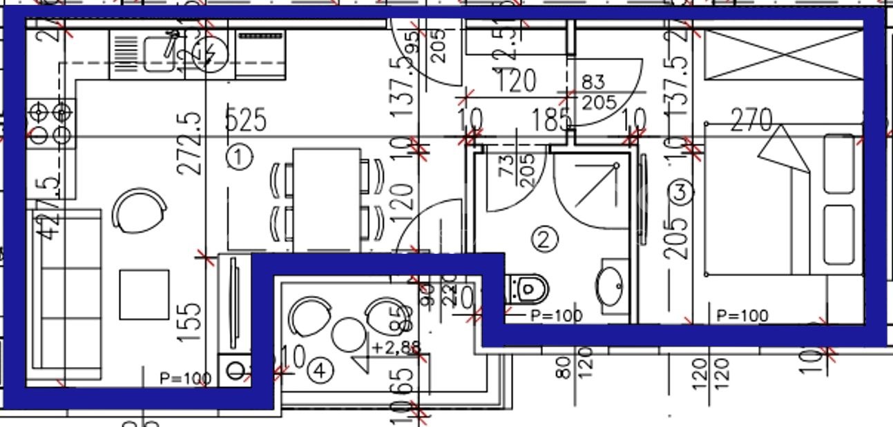
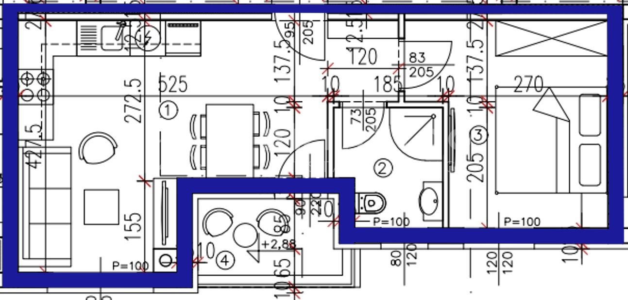
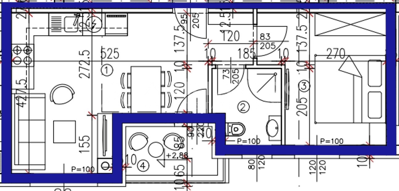
Tlocrti

Tlocrt: 1

Opis

Tar, Istra – Jednosoban stan s terasom u novogradnji s liftom
U mirnom dijelu Tara, samo nekoliko minuta vožnje od mora i grada Poreča, prodaje se moderan jednosoban stan smješten na prvom katu kvalitetne novogradnje s liftom.
Stan površine 37 m² pažljivo je projektiran kako bi pružio maksimalnu udobnost i funkcionalnost za svakodnevni život ili odmor u Istri.
Sastoji se od dnevnog boravka povezanog s kuhinjom i blagovaonicom, jedne spavaće sobe, kupaonice te terase koja nudi ugodan prostor za opuštanje i uživanje na otvorenom.
Uz stan dolaze i dva privatna parkirna mjesta.
Zgrada je izgrađena prema visokim standardima kvalitete, s liftom koji dodatno olakšava svakodnevni život.
Mirna lokacija, blizina mora, restorana i svih potrebnih sadržaja čini ovu nekretninu izvrsnim izborom za stanovanje, odmor ili investiciju.
Lokacija: Tar, Istra – mirno okruženje, blizina mora i Poreča
Površina stana: 37 m²
Jedna spavaća soba
Terasa
Dva privatna parkirna mjesta
Zgrada s liftom
Dovršetak izgradnje: Svibanj 2027.
Ova nekretnina predstavlja idealnu kombinaciju kvalitete, praktičnosti i mirnog istarskog okruženja.

Savršen izbor za parove, samce ili kao investicija za turistički najam u jednom od najtraženijih dijelova zapadne Istre.

Detalji

Updated on 30 ožujka, 2026 at 8:15 pm
  • ID nekretnine: 640-1
  • Cijena: €148,000
  • Kvadratura nekretnine: 37 m²
  • Spavaća soba: 1
  • Soba: 1
  • Kupaonica: 1
  • Godina izgradnja: 2027
  • Vrsta nekretnine: Stan, Stan u zgradi
  • Stanje nekretnine: Prodaja

Podaci za kontakt

Pogledajte nekretninu
Adriatico Real Estate
  • Adriatico Real Estate

Raspitajte se o ovoj nekretnini

Slični oglasi

Compare listings

Compare
Adriatico Real Estate
  • Adriatico Real Estate