Poreč, Istra – prostran stan u novogradnji, tražena lokacija!

  • €359,000
  • €3773.78/m2
721-1
Poreč

Osnovno

  • 3
  • Spavaćih soba
  • 1
  • Kupaonica
  • 95.13

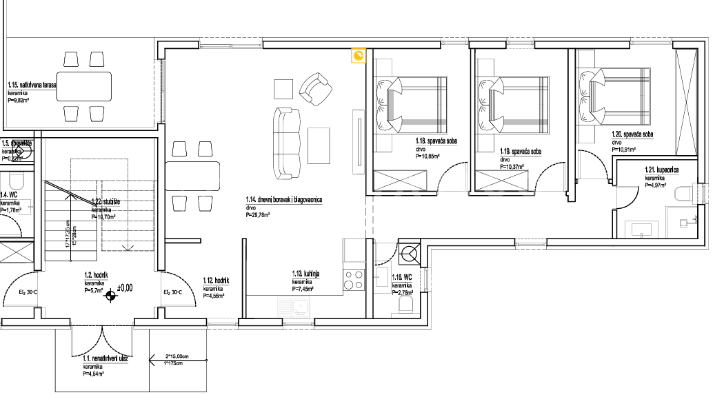
Tlocrti

Tlocrt: 1

Opis

Poreč – moderan stan u novogradnji, 700 m od mora

Na mirnoj i traženoj lokaciji u Poreču, svega 700 m od uređenih plaža i nekoliko minuta vožnje od centra grada, prodaje se stan u kvalitetnoj novogradnji smješten u manjoj stambenoj zgradi s ukupno 5 stanova.

Stan se nalazi na prvom katu te ima ukupnu površinu od 95 m². Sastoji se od ulaznog predsoblja, prostranog dnevnog boravka s kuhinjom i blagovaonicom te izlazona na natkrivenu terasu, gostinjskog toaleta, hodnika, tri spavaće sobe i kupaonice.

Stan je opremljen podnim grijanjem, dizalicom topline (svaki stan zasebno), PVC stolarijom s troslojnim staklima, električnim roletama i komarnicima, što osigurava visoku razinu komfora i energetsku učinkovitost.

Uz stan dolazi jedno parkirno mjesto, uz mogućnost kupnje dodatnog mjesta.

Planirani završetak gradnje: 31.05.2026. Nekretnina je u sustavu PDV-a te je isti uključen u cijenu. 

Idealna prilika za miran obiteljski život blizu mora, ali i kao odlična investicija za odmor ili turistički najam.

Detalji

Updated on 26 svibnja, 2026 at 11:05 am
  • ID nekretnine: 721-1
  • Cijena: €359,000
  • Kvadratura nekretnine: 95.13 m²
  • Spavaćih soba: 3
  • Sobe: 3
  • Kupaonica: 1
  • Godina izgradnja: 2026
  • Vrsta nekretnine: Stan, Stan u zgradi
  • Stanje nekretnine: Prodaja

Podaci za kontakt

Pogledajte nekretninu
Adriatico Real Estate
  • Adriatico Real Estate

Raspitajte se o ovoj nekretnini

Slični oglasi

Compare listings

Compare
Adriatico Real Estate
  • Adriatico Real Estate