Rovinj, jedinstvena prilika: dva stana u jednom u centru grada

  • €350,000
  • €315,000
  • €7159.09/m2
641-1
Rovinj

Osnovno

  • 2
  • Spavaćih soba
  • 2
  • Kupaonice
  • 44

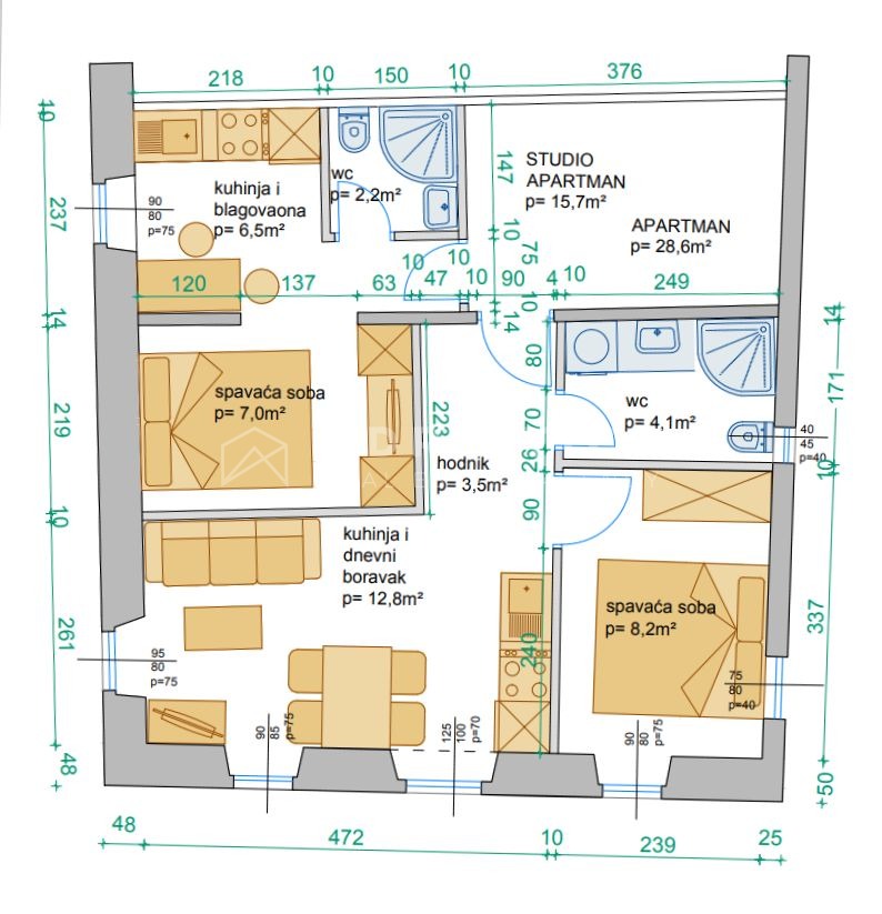
Tlocrti

Tlocrt: 1

Opis

Rovinj, prodaje se stan, u naravi dva stana u centru grada.

Ovaj jedinstven stan u Rovinju, smješten je na trećem katu stambene zgrade u samom centru grada, ali u mirnoj ulici bez buke i gužve. Stan se u naravi sastoji od dva odvojena stana, što ga čini izuzetno atraktivnim za investiciju ili turistički najam.
Opis nekretnine:
Manji stan obuhvaća:

ulazni hodnik

kuhinju s blagovaonicom

spavaću sobu

kupaonicu

Veći stan sastoji se od:

ulaznog hodnika

kuhinje i blagovaonice

dnevnog boravka

spavaće sobe

kupaonice

Dodatne karakteristike:

Grijanje i hlađenje putem klima uređaja (dvije klime po stanu)

PVC stolarija i komarnici na svim prozorima

Protuprovalna vrata

Ugrađen pročišćivač kamenca

Stan je potpuno renoviran 2018. godine, uz zadržane autentične drvene grede na stropovima i originalni kamen na zidovima, što prostoru daje poseban istarski šarm.

Ova nekretnina nalazi se na savršenoj lokaciji – u srcu Rovinja, nekoliko minuta hoda od mora, restorana, trgovina i svih sadržaja koje nudi jedan od najljepših gradova na Jadranu.
Stan se uspješno iznajmljuje tijekom ljeta, s već uhodanim poslom, te je spreman za nove vlasnike. Prodaje se potpuno namješten, što omogućuje trenutno useljenje ili nastavak turističkog poslovanja bez dodatnih ulaganja.

Detalji

Updated on 30 ožujka, 2026 at 8:15 pm
  • ID nekretnine: 641-1
  • Cijena: €315,000
  • Kvadratura nekretnine: 44 m²
  • Spavaćih soba: 2
  • Sobe: 4
  • Kupaonice: 2
  • Vrsta nekretnine: Stan, Stan u zgradi
  • Stanje nekretnine: Prodaja

Podaci za kontakt

Pogledajte nekretninu
Adriatico Real Estate
  • Adriatico Real Estate

Raspitajte se o ovoj nekretnini

Slični oglasi

Compare listings

Compare
Adriatico Real Estate
  • Adriatico Real Estate