Tar, Istra – novogradnja – dvosobni stan na prvom katu zgrade s liftom

  • €227,500
  • €3500/m2
639-1
Tar

Osnovno

  • 2
  • Spavaćih soba
  • 1
  • Kupaonica
  • 65

Tlocrti

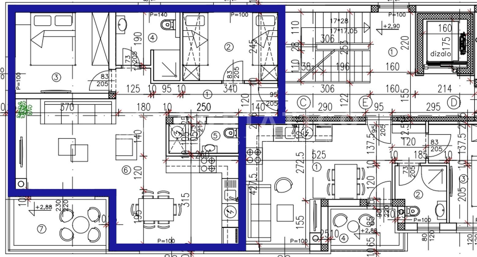
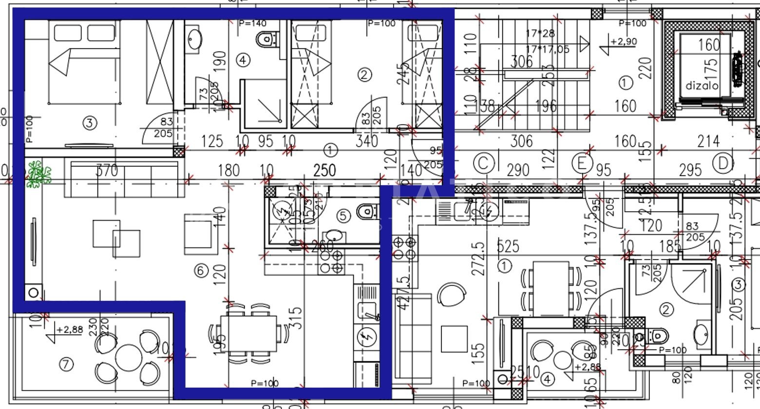
Tlocrt: 1

Opis

Tar, Istra – dvosoban stan s terasom i liftom u modernoj novogradnji
U mirnom i uređenom dijelu Tara, svega nekoliko minuta od mora i slikovitih istarskih gradića, prodaje se moderan dvosoban stan na prvom katu novogradnje visoke kvalitete.
Stan površine 65 m² osmišljen je tako da ponudi savršenu ravnotežu između udobnosti, funkcionalnosti i modernog načina života.
Prostrani open space dnevni boravak s kuhinjom i blagovaonicom čini središte doma – svijetao, prozračan i ugodan prostor za druženje ili opuštanje nakon dana provedenog na moru.
Stan uključuje dvije spavaće sobe, kupaonicu, odvojeni toalet te terasu orijentiranu prema jugozapadu, savršenu za uživanje u suncu i zalascima.
Zgrada je opremljena liftom, što osigurava dodatnu praktičnost i udobnost svakodnevnog života.
Uz stan dolaze i dva privatna parkirna mjesta.
Lokacija: Tar, Istra – mirno okruženje, blizina mora, Poreča i svih važnih sadržaja
Površina stana: 65 m²
Open space kuhinja, blagovaonica i dnevni boravak
Dvije spavaće sobe
Kupaonica + odvojeni toalet
Terasa (jugozapadna orijentacija)
Dva privatna parkirna mjesta
Zgrada s liftom
Dovršetak izgradnje: Svibanj 2027.
Ova nekretnina nudi moderan, bezbrižan i kvalitetan život u Istri – dovoljno mirno za svakodnevni odmor, a istovremeno blizu svega što čini istarski način života posebnim.
Izvrsna prilika za stalni dom, odmor ili dugoročnu investiciju.
Kontaktirajte nas i saznajte više o ovoj atraktivnoj nekretnini u Taru.

Detalji

Updated on 30 ožujka, 2026 at 8:15 pm
  • ID nekretnine: 639-1
  • Cijena: €227,500
  • Kvadratura nekretnine: 65 m²
  • Spavaćih soba: 2
  • Sobe: 2
  • Kupaonica: 1
  • Godina izgradnja: 2027
  • Vrsta nekretnine: Stan, Stan u zgradi
  • Stanje nekretnine: Prodaja

Podaci za kontakt

Pogledajte nekretninu
Adriatico Real Estate
  • Adriatico Real Estate

Raspitajte se o ovoj nekretnini

Slični oglasi

Compare listings

Compare
Adriatico Real Estate
  • Adriatico Real Estate